Minne palautan yliopiston avaimet?
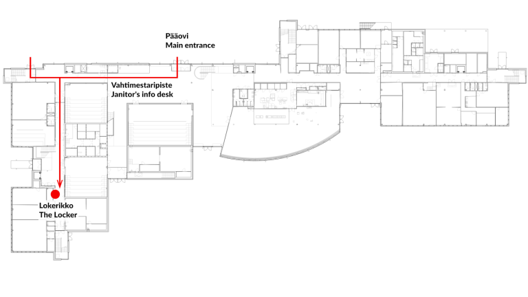
Avainten palauttaminen onnistuu ma-pe klo 8-15.30 palvelupiste Clavisiin palautusluukun kautta (T-rakennus, T433) tai säilytyslokerikkoon Agorassa (osoite Mattilanniemi 2).
Yliopiston avaimet tulee palauttaa viimeistään työsuhteen tai kulkuoikeuden viimeisenä arkipäivänä. Avainten palauttaminen onnistuu ma-pe klo 8-15.30 palvelupiste Clavisiin palautusluukun kautta (T-rakennus, T433) tai säilytyslokerikkoon Agorassa (osoite Mattilanniemi 2).
Ongelmatilanteissa ota yhteyttä palvelupiste Clavisiin.
Avaintenpalautus säilytyslokerikkoon Agorassa


- Lueta kulkukorttiasi lokerikon kosketusnäytöllä ja paina "Vahvista", jolloin yksi lokero aukeaa.
- Laita palautettavat avaimet sekä kulkukortti lokeroon ja paina lokeron ovi kiinni.
- Lähetä palautuksestasi kertova sähköpostiviesti sekä esimiehellesi että osoitteeseen key-support@jyu.fi.
Kiitos palautuksestasi!